Omschrijving
Aan de Stationstraat 4 in Alphen is deze karakteristieke woning met garage op een ruim perceel gelegen. De woning is in de loop der jaren uitgebouwd en gemoderniseerd. De woning biedt dan ook het comfort van nu met behoud van het karakter van weleer.
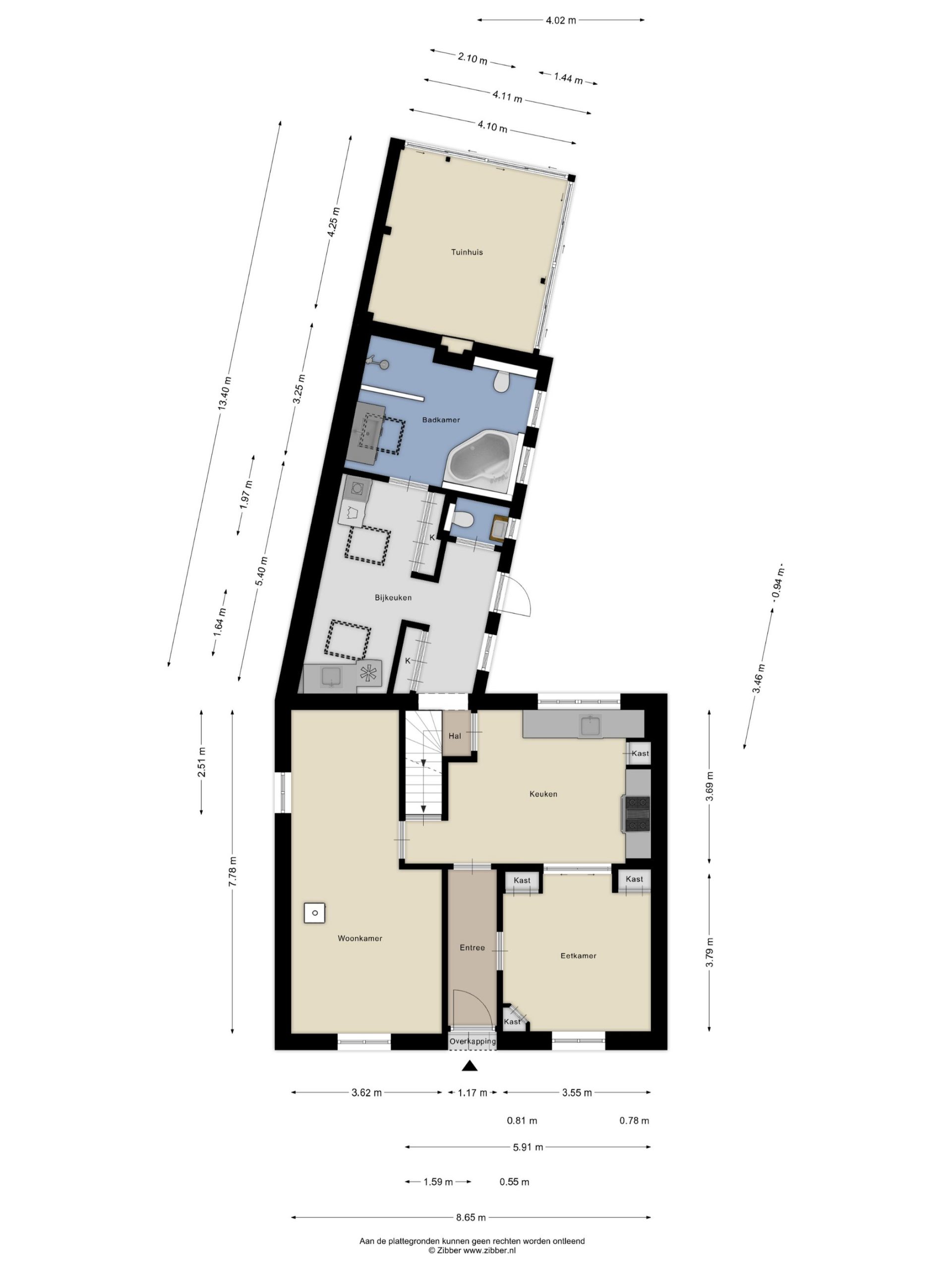
Centraal is de voordeur gelegen. Op de begane grond is de hal, de eetkamer, zitkamer en ruime leefkeuken. Er is ook een kelder. In de aanbouw is de bijkeuken, toilet en badkamer gesitueerd. Aan de achterzijde van de woning is een sfeervolle tuinkamer. Op de 1e verdieping zijn vier slaapkamers en een badkamer. Op de 2e verdieping is een bergzolder welke bereikbaar is via een vaste trap. Op het ruime perceel staat een ruime garage met berging en overkapping en een dubbel tuinhuis.
Ben je op zoek naar een bijzondere woning met garage en tuin met veel privacy, gelegen in het centrum van Alphen dicht bij alle voorziening? Maak dan snel een afspraak voor een bezichtiging om de sfeer en het karakter van de woning te ervaren. We laten je deze woning graag zien!
Indeling:
Begane grond
Entree
De voordeur is in het midden van de woning gesitueerd, wat bij dit type woningen uit die tijd past. Links en rechts van de centrale hal zijn twee kamers. De hal heeft een originele tegelvloer en de wanden zijn tot een hoogte van ca. 1.10 m voorzien van tegels. Boven de voordeur is de originele levensboom in het bovenlicht nog aanwezig. Dit zijn de leuke details die het karakter van de woning onderstrepen. Vanuit de hal kun je naar de eetkamer en naar de keuken.
Keuken
De ruime leefkeuken is aan de achterzijde van de woning gelegen. De keukenopstelling past bij de sfeer van de woning. Naast de diverse kastjes en lades is er een granieten werkblad. Hierin is de gootsteen verwerkt. Er is een fornuis met 6 gaspitten en een dubbele oven aanwezig. Verder is de keuken voorzien van een koelkast en vaatwasser. De keuken heeft een landelijke uitstraling. Er is een tegelvloer welke voorzien is van vloerverwarming. In de keuken is ook de entree naar de kelder. De kelderwanden zijn volledig betegeld. Via de dubbele ensuite deuren ga je naar de eetkamer.
Eetkamer
De ensuite deuren zijn voorzien van glas in lood. Er is een houtenvloer en de wanden en plafond zijn gestuct. Naast de ensuite deuren zijn kasten. In de hoek is er een inbouwkast, waar ook de meterkast is opgesteld. De eetkamer is ook via de hal te bereiken.
Woonkamer
Via de keuken is de zitkamer te bereiken. Ook hier is het plafond en zijn de wanden gestuct. Centraal is de houtkachel opgesteld.
Bijkeuken
Vanuit de keuken kom je in een tussenhal. Hier is de vaste trap naar de 1e verdieping als ook de toegang tot de bijkeuken. Deze later verbouwd/aangebouwd. De tegelvloer is ook hier voorzien van vloerverwarming. Er zijn diverse inbouwkasten. In de bijkeuken is ook het toilet gelegen. Het is een zwevend closet en er is een fonteintje aanwezig. In het achterste deel van de bijkeuken is de opstelplaats voor de wasmachines en droger. Er is een keukenblok met spoelbak met koud en warmwater aanwezig. In dit deel zijn ook inbouwkasten voor extra opbergruimte.
Badkamer
Achter de bijkeuken is de badkamer gelegen. De wanden en de vloer zijn volledig betegeld. De badkamer is compleet ingericht. Er is een rond ligbad, een inloopdouche, een wastafelmeubel met spiegel en een zwevend toilet. De badkamer heeft een luxe uitstraling.
1e verdieping
Via de vaste trap tussen de keuken en bijkeuken ga je naar de 1e verdieping. Vanuit de overloop zijn vier slaapkamers en een badkamer met toilet te bereiken. Er zijn drie slaapkamers aan de voorzijde van de woning gelegen en een aan de achterkant. Op de overloop is er een kast voor extra bergruimte.
De slaapkamers hebben allemaal een nette afwerking. De slaapkamer aan de achterzijde heeft een kledingkast en de dakkapel geeft uitzicht op de achtertuin. Ook de slaapkamers aan de voorzijde zijn voorzien van inbouwkasten.
De badkamer is aan de achterkant van de woning gelegen. Hier is een douche, toilet en wastafelmeubel met spiegel. De wanden zijn volledig betegeld.
2e verdieping
Via de vaste trap op de 1e verdieping ga je naar de bergzolder. Hier is de Daalderop Combifort 30/ 50+ CV (2009) ketel opgesteld, als ook een elektrische boiler, Nefit- Bosch Tronic 4000 T boiler Elektrisch 120 liter (2022). De elektrische boiler in combinatie met de 15 zonnepanelen is dit gunstig voor het energieverbruik.
Tuin, tuinhuis, garage en berging
De woning is gelegen op een ruim perceel van ca. 585 m². Rechts van de woning staat de vrijstaande garage met berging. Voor de garage is een brede bestrate oprit welke parkeerruimte biedt voor meerdere auto’s. De garage heeft een afmeting van ca. 3.93 x 4.84 m met hierachter een berging van 3.93 x 4.79 m. Het is een lichtgewichtwand tussen de garage en berging en kan dus eenvoudig verwijderd of verplaatst worden, zodat er een grote ruimte van ca. 9.63 m ontstaat. De garage/berging is voorzien van elektra en water.
Achter de woning is de tuinkamer gelegen. Een heerlijke ruimte welke volledig is af te sluiten met een glazenschuifwand. De grote tegels in combinatie met het schoonmetselwerk en houten plafond maken het een heerlijke ruimte om met familie en vrienden te verblijven. Ook de openhaard draagt daar natuurlijk aan bij. Verder is deze ruimte voorzien van verlichting en elektra. Door de grote raampartijen hebben je een fantastisch zicht op de tuin.
Achter de garage/berging is er een overkapping voor bijvoorbeeld houtopslag. De tuin is op het westen gelegen en is voorzien van diverse hagen en volwassen planten/bomen. Een groot deel van de tuin bestaat uit gazon. Het terras achter de woning is voorzien van straatwerk. De tuin biedt veel privacy.
Achter in de tuin staat een houten tuinhuisje wat is verdeeld in twee ruimtes. Ideaal voor het opbergen van tuingereedschap en machines.
Kenmerken
o 1912 (recent uitgebouwd en gemoderniseerd)
o Energielabel D.
o Karakteristieke vrijstaande woning.
o Nog veel originele details aanwezig.
o Een hoog afwerkingsniveau.
o Een vrijstaande garage.
o Fraai aangelegde tuin met tuinkamer.
o Daalderop Combifort 30/ 50+ CV (2009).
o Nefit- Bosch Tronic 4000 T boiler Elektrisch 120 liter.
o 15 zonnepanelen.
o Ruime woning, o.a. vier slaapkamers.
o Rustige gelegen in het centrum van Alphen.
o Aanvaarding in overleg.
Alphen
Alphen is gelegen in de groene driehoek, tussen Breda en Tilburg, ten zuiden van de Rijksweg A58 en omgeven door bossen, waar onder andere landgoed de Hoevens is gelegen. Het dorp heeft een ruim winkelaanbod, er zijn verschillende sportverenigingen, een Cultureel Centrum, een basisschool en kinderopvang. Het voortgezet onderwijs vind je op fietsafstand in Baarle-Nassau of Goirle. Er is een ook goede busverbinding naar o.a. Baarle-Nassau en Tilburg. Rust en ruimte om te wonen met goede voorzieningen en de steden dichtbij. Gemeente Alphen-Chaam is een Cittaslow* gemeente. Kortom, het is fijn wonen in Alphen!
* Cittaslow is het internationale keurmerk voor gemeenten die op het gebied van leefomgeving, landschap, streekproducten, gastvrijheid, milieu, infrastructuur, cultuurhistorie en behoud van identiteit tot de top behoren.
Verkoopvoorwaarden
– Meetinstructie NEN2580
Deze woning is opgemeten conform de Meetinstructie. De Meetinstructie is gebaseerd op de NEN2580. De Meetinstructie is bedoeld om een meer eenduidige manier van meten toe te passen voor het geven van een indicatie van de gebruiksoppervlakte en inhoud. De Meetinstructie sluit verschillen in meetuitkomsten niet volledig uit, door bijvoorbeeld interpretatieverschillen, afrondingen of beperkingen bij het uitvoeren van de meting. Uitgangspunt blijft altijd; “wat je ziet is wat je koopt” en de objectinformatie is van lagere prioriteit.
– Asbestclausule
Bij woningen die voor 1 juli 1993 gebouwd zijn, bestaat het risico dat er asbesthoudende materialen verwerkt zijn in o.a. (rook)kanalen, dak(beschot), scheidingswanden, gevelpanelen, nabij verwarmings- en warmwatertoestellen en in de vloerbedekking. Het eventuele risico van aanwezigheid van asbesthoudende materialen gaat na een verkoop over op de kopende partij, hetgeen wordt vastgelegd in de koopakte.
– Ouderdomsclausule
De ouderdomsclausule zal voor deze woning in de koopakte worden opgenomen omdat de onroerende zaak meer dan 112 jaar oud is, wat betekent dat de eisen die aan de bouwkwaliteit gesteld mogen worden aanzienlijk lager liggen dan bij de nieuwe woningen. Koper kan zich hierdoor niet beroepen op het feit dat deze woning afwijkt van de huidige bouwvoorschriften.
Kenmerken
We helpen je graag verder
Bezichtiging plannen?
Benieuwd geworden? Kom de sfeer van dit huis zelf proeven tijdens een bezichtiging. Wie weet is dit straks jouw nieuwe thuis.
Plan een bezichtiging
Gratis zoekopdracht
Op zoek naar jouw droomhuis? Ontvang ons nieuwste aanbod direct in je mailbox en laat ons je helpen bij het vinden van de woning die perfect bij je past.
Benieuwd wat jouw woning waard is?