€ 595.000 k.k.
Omschrijving
Aan de Stationstraat 18 in Alphen staat deze keurige vrijstaande woning met ruime tuin. De woning is in de loop der jaren gemoderniseerd en er is recent een kantoor/atelier in de tuin gebouwd. Een woning welke geschikt is voor een brede doelgroep.
Op de begane grond is de hal gelegen, een toilet, woonkamer met open keuken en bijkeuken. Op de 1e verdieping is de overloop, drie slaapkamers, toilet en badkamer. Via de vlizotrap op de overloop is de 2e verdieping bereikbaar.
In de tuin staat er een nieuwe berging met overkapping voor de fietsen. Achter in de tuin is er een kantoor/atelier gebouwd.
Ben je op zoek naar een instapklare, vrijstaande woning dan moet je zeker komen kijken!
Indeling:
Begane grond
Entree
Via de voordeur aan de voorzijde van de woning kom je in de ruime hal. Hier is onder andere de meterkast (12 lichtgroepen, 2 aardlekschakelaars, 1 PV groep tbv de zonnepanelen en een groep voor de laadpaal, deze laatste gaat mee). Verder is hier de vaste trap naar de 1e verdieping als ook het toilet.
Toilet
Het toilet is keurig afgewerkt en bestaat uit een zwevend closet en een fonteintje.
Woonkamer
Vanuit de hal kom je in de ruime woonkamer van circa 47 m². De strakke schouw is voorzien van een sfeervolle gashaard. De dubbele openslaande tuindeuren geven toegang tot de tuin. De woonkamer is voorzien van een tegelvloer met vloerverwarming en glad stucwerk wand- en plafondafwerking.
Openkeuken
De open keuken heeft een afmeting van circa 2.60 m x 4.60 m en is voorzien van een modern keukenblok met een apothekerskast, een combimagnetron, een koelkast, een vaatwasser, 1½ spoelbak, een 4-pits gaskookplaat en een afzuigkap. De keuken is voorzien van een tegelvloer en glad stucwerk wand- en plafondafwerking.
Bijkeuken
Vanuit de openkeuken ga je naar de bijkeuken welke aan de achterkant van de woning is gesitueerd. Hier zijn onder andere de opstelplaats van de CV-installatie (Nefit 2017) als ook de aansluitingen voor de wasmachine en droger. Vanuit de bijkeuken ga je naar de achtertuin.
1e verdieping
Via de vaste trap in de hal ga je naar de 1e verdieping. Je komt op de overloop waar het luik met vlizotrap is welke toegang geeft naar de 2e verdieping. Vanuit de overloop zijn de drie slaapkamers te bereiken als ook de badkamer en het toilet. Op de overloop is er een airco voor extra verkoeling op de 1e verdieping.
Slaapkamers
De hoofdslaapkamer is aan de rechterzijde van de woning. De openkapstructuur met de houtengordingen in het zicht en de twee dakkapellen maken het een sfeervolle ruimte met het oorspronkelijke karakter. De slaapkamer heeft een afmeting van ca. 4.42 x 4.65 m. Vanuit de slaapkamer is de walk in closet (groot ca. 2.06 x 2.65 m) bereikbaar.
De tweede slaapkamer is aan de achterzijde van de woning gelegen en heeft een afmeting van ca. 4.56 x 2.70 m.
De derde slaapkamer is aan de voorzijde gesitueerd en heeft een afmeting van ca. 2.93 x 3.11 m en heeft ook een dakkapel.
Badkamer
Aan de achterzijde van de woning is de badkamer gelegen. Deze heeft een afmeting van 2.70 x 3.06 m. De badkamer is uitgerust met een ligbad, een douchecabine en een wastafelmeubel met spiegel. Er is een designradiator voor heerlijk warme handdoeken. De badkamer is volledig betegeld.
2e verdieping
Via de vlizotrap op de overloop is de zolder bereikbaar. Hier is onder andere de omvormer van de zonnepanelen geplaatst. De zolder strekt zich uit over de badkamer, toilet en de twee slaapkamers. De hoofdslaapkamer heeft een open kapconstructie.
Tuin, berging, overkapping en kantoor-atelier
De woning is gelegen op een ruim perceel van ca. 317 m². Rechts van de woning is er een oprit welke plaats biedt aan minimaal 2 auto’s. Op dit moment is hier ook de laadpaal voor het opladen van de auto. De laadpaal wordt in principe meegenomen door de verkopers. In de openbare ruimte is er ook veel parkeergelegenheid. Via de poort op de oprit kom je in de achtertuin. De tuin is volledig afgesloten.
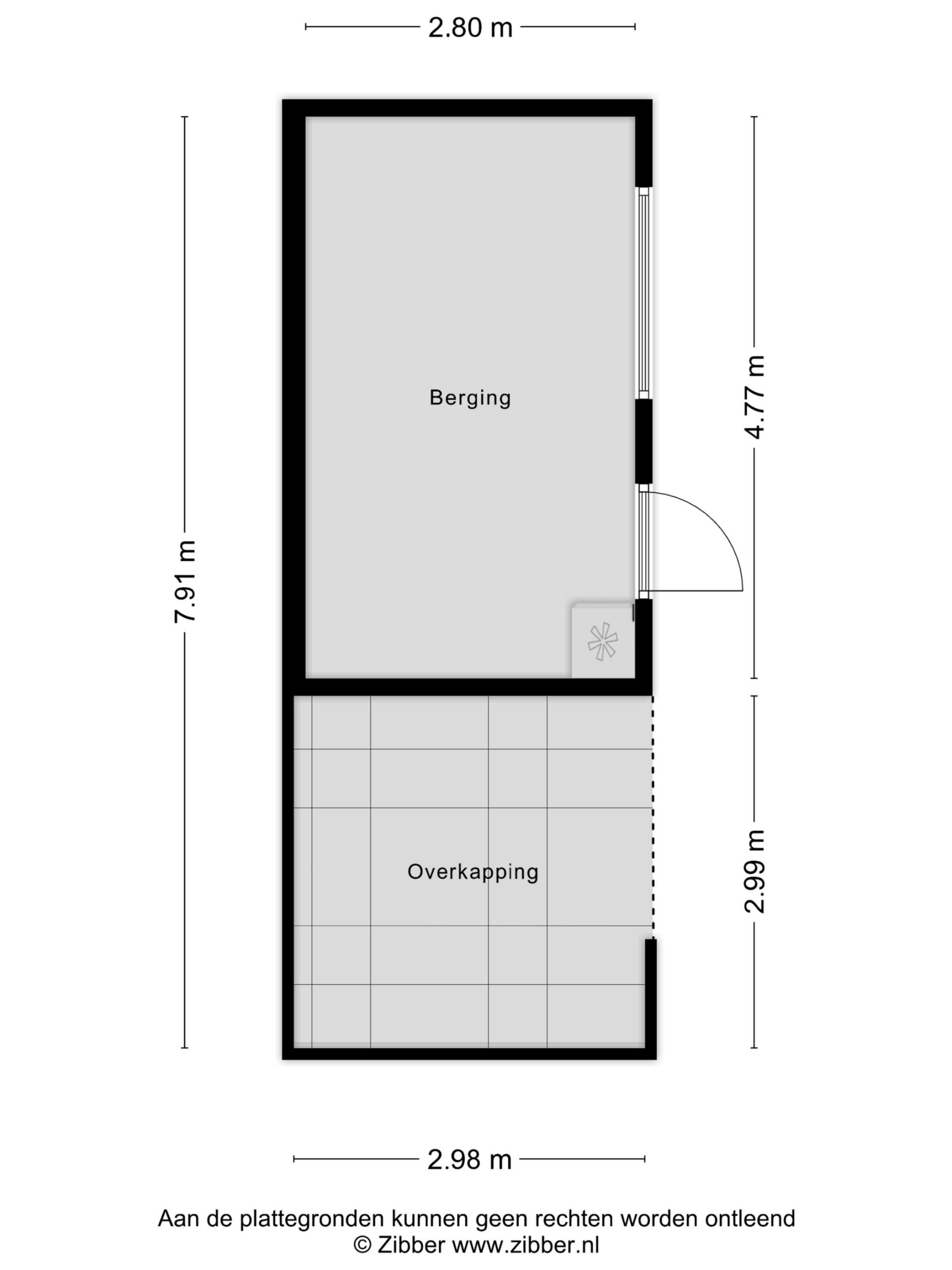
Berging
In het verlengde met de oprit is er een berging gebouwd. Deze is gepotdekseld en heeft een afmeting van ca. 2.80 x 4.77 m. De ruimte is geïsoleerd en is voorzien van elektra. Achter de berging staat overkapping wat momenteel gebruikt wordt als fietsenstalling.
Kantoor/atelier
Achter in de tuin hebben de huidige bewoners een kantoor – atelier gebouwd. De ruimte is multifunctioneel en geschikt voor meerdere doeleinden. De ruimte is volledig geïsoleerde en voorzien van elektra en water. Er is een toilet en een keukenblok met afzuigkap aanwezig. Er is een loopdeur als ook een dubbele tuindeur aanwezig. De ruimte is voorzien van een airco voor koeling en verwarming.
De tuin is op het westen gelegen en heeft meerdere terrassen en is voorzien van sierbestrating. Verder zijn er volwassen planten als ook gras. Het achterste deel is kunstgras. Momenteel staat er een speelhuisje in de tuin voor de kinderen wat eventueel achter mag blijven.
Kenmerken
o 1906 (2017 gerenoveerd/gemoderniseerd)
o Energielabel C.
o Woning is instapklaar.
o Een hoog afwerkingsniveau.
o De woning is voorzien van rolluiken.
o Kantoor – atelierruimte.
o Een vrijstaande berging en overkapping.
o Een mooie tuin op het westen gelegen met veel privacy.
o Nefit CV-combi ketel (2017).
o Airco’s in woning en kantoor – atelier.
o 14 zonnepanelen.
o Rustige gelegen in het centrum van Alphen.
o Parkeren op eigen terrein.
o Aanvaarding in overleg.
Alphen
Alphen is gelegen in de groene driehoek, tussen Breda en Tilburg, ten zuiden van de Rijksweg A58 en omgeven door bossen, waar onder andere landgoed de Hoevens is gelegen. Het dorp heeft een ruim winkelaanbod, er zijn verschillende sportverenigingen, een Cultureel Centrum, een basisschool en kinderopvang. Het voortgezet onderwijs vind je op fietsafstand in Baarle-Nassau of Goirle. Er is een ook goede busverbinding naar o.a. Baarle-Nassau en Tilburg. Rust en ruimte om te wonen met goede voorzieningen en de steden dichtbij. Gemeente Alphen-Chaam is een Cittaslow* gemeente. Kortom, het is fijn wonen in Alphen!
* Cittaslow is het internationale keurmerk voor gemeenten die op het gebied van leefomgeving, landschap, streekproducten, gastvrijheid, milieu, infrastructuur, cultuurhistorie en behoud van identiteit tot de top behoren.
Verkoopvoorwaarden
– Meetinstructie NEN2580
Deze woning is opgemeten conform de Meetinstructie. De Meetinstructie is gebaseerd op de NEN2580. De Meetinstructie is bedoeld om een meer eenduidige manier van meten toe te passen voor het geven van een indicatie van de gebruiksoppervlakte en inhoud. De Meetinstructie sluit verschillen in meetuitkomsten niet volledig uit, door bijvoorbeeld interpretatieverschillen, afrondingen of beperkingen bij het uitvoeren van de meting. Uitgangspunt blijft altijd; “wat je ziet is wat je koopt” en de objectinformatie is van lagere prioriteit.
– Asbestclausule
Bij woningen die voor 1 juli 1993 gebouwd zijn, bestaat het risico dat er asbesthoudende materialen verwerkt zijn in o.a. (rook)kanalen, dak(beschot), scheidingswanden, gevelpanelen, nabij verwarmings- en warmwatertoestellen en in de vloerbedekking. Het eventuele risico van aanwezigheid van asbesthoudende materialen gaat na een verkoop over op de kopende partij, hetgeen wordt vastgelegd in de koopakte.
– Ouderdomsclausule
De ouderdomsclausule zal voor deze woning in de koopakte worden opgenomen omdat de onroerende zaak meer dan 118 jaar oud is, wat betekent dat de eisen die aan de bouwkwaliteit gesteld mogen worden aanzienlijk lager liggen dan bij de nieuwe woningen. Koper kan zich hierdoor niet beroepen op het feit dat deze woning afwijkt van de huidige bouwvoorschriften.
Kenmerken
We helpen je graag verder
Bezichtiging plannen?
Benieuwd geworden? Kom de sfeer van dit huis zelf proeven tijdens een bezichtiging. Wie weet is dit straks jouw nieuwe thuis.
Plan een bezichtiging
Gratis zoekopdracht
Op zoek naar jouw droomhuis? Ontvang ons nieuwste aanbod direct in je mailbox en laat ons je helpen bij het vinden van de woning die perfect bij je past.
Benieuwd wat jouw woning waard is?