€ 535.000 k.k.
Omschrijving
In de dorpskern van Ulicoten staat deze unieke vrijstaande woning. Een voormalig bankgebouw wat is getransformeerd naar een comfortabele woning met heerlijke ruimtes. De kluis is de stille getuigen naar het verleden.
Op de begane grond is de entree, woonkamer, een ruime leefkeuken, een berging oftewel de voormalige kluis, een hal, een bijkeuken en nog een berging en het toilet.
Op de 1e verdieping zijn 3 slaapkamers en de badkamer. In de tuin is er een ruime berging.
Kortom, een thuis om heerlijk te wonen.
Bouwjaar : 1965 (hierna gemoderniseerd)
Perceeloppervlakte : 333 m²
Inhoud woning : Ca. 789 m³
Woonoppervlak : Ca. 199 m²
Overige inpandige ruimte : Ca. 14 m²
Aanvaarding : In onderling overleg
Indeling:
Begane grond
Via de statige entree aan de voorzijde van de woning kom je in de hal en heb je toegang tot de meterkast (14 groepen en 4 aardlekschakelaars). Vanuit deze hal kom je in het voorportaal van de woonkamer.
Woonkamer
De woonkamer is ruim en heeft een oppervlak van meer dan 50 m². De grote raampartijen, welke overigens van aluminium zijn met HR++ dubbelglas. Het is een sfeervolle ruimte met aan een zijde een ruime boekenkast en centraal de allesbrander. De vloer is deels van massief eikenhout en deels van natuursteen.
Kamer/Kantoor
Aan de achterzijde van de woning is een aparte kamer welke perfect gebruikt kan worden als kantoor, maar natuurlijk ook een eigen speelplek voor de kinderen.
Keuken
De keuken is geheel gemoderniseerd en heeft nu een hoekopstelling. Door de afmetingen kunnen we hier zeker spreken van een leefkeuken, een heerlijke plek om met de familie en vrienden samen te zijn. Deze is compleet en uitgerust met een inductiekookplaat met een geïntegreerde afzuiging, een spoelbak voorzien van een quooker, een inbouw vaatwasser en een koelkast. Verder zijn er een tweetal ovens welke zijn uitgerust met een pyrolyse systeem (automatisch reinigen). Er zijn voldoende boven- en onderkasten en lades voor het opbergen van de keukenapparatuur en kookspullen. De vloer is een zogenaamde gietvloer, welke uitstekend combineert met de moderne keuken.
Berging/voormalige kluis
Vanuit de keuken kom je in de ruimte voor de berging/voormalige kluis wat een onderdeel van de woonkamer is. Aan deze hal is de voormalige kluis gelegen. De kluisdeur is nog origineel en een leuk detail welke verwijst naar het verleden. De ruimte is geschikt als berging, maar bijvoorbeeld ook voor het opleggen van je heerlijke wijnen.
Hal
Aan de achterzijde van de woning is er een hal waar de achterdeur naar de tuin is. Hier is ruimte voor de garderobe. Vanuit hier is ook de bijkeuken/berging bereikbaar als ook het toilet op de benedenverdieping. Vanuit deze hal is ook de vaste trap naar de 1e verdieping te bereiken.
Berging
Aan de achterzijde zijn er 2 bergingen. In de 1e is de opstellingsplaats voor de wasmachine en eventueel de droger. Verder is er veel opbergruimte. In de 2e berging is de opstelling van de CV.
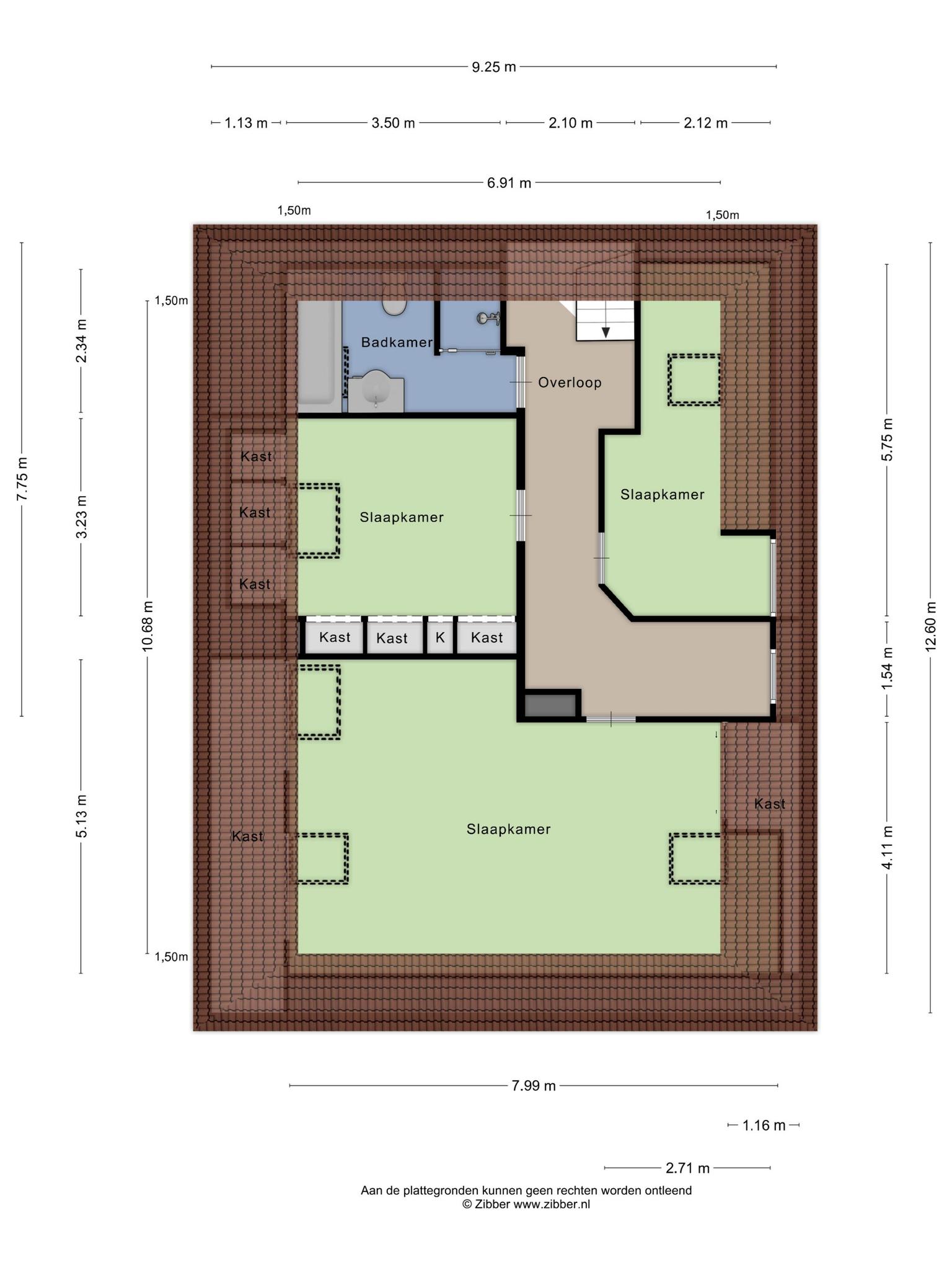
1e verdieping
Via de vaste trap kom je op de overloop op de 1e verdieping. Op deze verdieping zijn de drie slaapkamers als ook de badkamer gelegen.
Slaapkamers
De 1e slaapkamer heeft een afmeting van ca. 3.23 x 3.50 m, excl. de inbouwkasten. Er is veel kastruimte beschikbaar, zowel leg als hang. De vloer is van massief hout. Het grote veluxraam zorgt voor veel lichtinval.
De 2e slaapkamer heeft ook een veluxraam als ook een dakkapel voor voldoende licht in de kamer.
De 3e slaapkamer wordt momenteel gebruikt als atelier en heeft een oppervlak van ca. 40 m². Een heerlijk grote ruimte welke voor veel doeleinden geschikt is. Er zijn drie grote veluxramen aanwezig als ook veel kastruimte in de knieschotten. De hoge nok geeft een gevoel van ruimte.
Badkamer
De badkamer is voorzien van een ligbad, een douche, een toilet en een wastafelmeubel met spiegel. De wanden en de vloer zijn volledig betegeld.
Tuin & berging
Rondom de woning is er een tuin aangelegd. Aan de voorzijde is de tuin omzoomd met een haag en zijn er diverse planten aanwezig. De achtertuin is bereikbaar via een poort aan de oost- en westzijde. Aan de achterzijde is een terras/zitje als ook een gazon en diverse planten. De tuin biedt veel privacy. In de achtertuin is ook een berging van ca. 2.16 x 6.54 m.
Er is ruim voldoende parkeergelegenheid in de nabije omgeving.
Kenmerken
o Bouwjaar 1965 (hierna gemoderniseerd)
o Energielabel C
o Volledig aluminium kozijnen met HR++ dubbelglas (m.u.v. 2 kleine ramen)
o C.v.-combiketel (Vaillant, 2019).
o Na 2019 is de woning grondig gemoderniseerd, zoals;
o Nieuwe luxe keuken geplaatst
o Plafond in keuken gestuct
o Gietvloer in keuken
o Aluminium kozijnen geplaatst met HR++ dubbelglas
o 11 zonnepanelen geplaatst
o Nieuwe nokvorsten aangebracht
o Nieuwe dakkapel kunststof geplaatst
o Nieuw dak op schuur
o Groepenkast vernieuwd
o Radiatoren en leidingen vernieuwd
o Riolering vernieuwd
o Woning met een specifiek karakter
o Authentieke kluis nog aanwezig
o Tuin met veel privacy
o Er is voldoende parkeergelegenheid in de directe omgeving
o Aanvaarding in overleg.
Ulicoten
Ulicoten ligt ten zuidoosten van het enclavedorp Baarle en heeft ongeveer 1.000 inwoners. Het dorp wordt omgeven door mooie bosgebieden zoals Den Rooy. De geborgenheid van een klein dorp, met een multifunctioneel gebouw genaamd ‘De Bremerpoort’ waar o.a. een basisschool en kinderopvang in is gevestigd, maar waar je ook terecht kan bij de geldautomaat, voor dagelijkse boodschappen of een afspraak met de huisarts. Verder heeft Ulicoten (sport-)verenigingen, restaurants en een kledingwinkel in het dorp zelf. Alle overige voorzieningen zijn in de nabije omgeving aanwezig. Brabantse steden zijn dichtbij, maar ook de Zuid-Hollandse stad Rotterdam en de Belgische stad Antwerpen zijn vlot bereikbaar. Naar de steden Tilburg en Breda zijn goede busverbindingen. In Ulicoten vind je rust en ruimte om te wonen met goede voorzieningen en de steden dichtbij. Kortom, het is fijn wonen in Ulicoten!
Verkoopvoorwaarden
– Asbestclausule
Bij woningen die voor 1 juli 1993 gebouwd zijn, bestaat het risico dat er asbesthoudende materialen verwerkt zijn in o.a. (rook)kanalen, dak(beschot), scheidingswanden, gevelpanelen, nabij verwarmings- en warmwatertoestellen en in de vloerbedekking. Het eventuele risico van aanwezigheid van asbesthoudende materialen gaat na een verkoop over op de kopende partij, hetgeen wordt vastgelegd in de koopakte.
– Ouderdomsclausule
De ouderdomsclausule zal voor deze woning in de koopakte worden opgenomen omdat de onroerende zaak meer dan 59 jaar oud is, wat betekent dat de eisen die aan de bouwkwaliteit gesteld mogen worden aanzienlijk lager liggen dan bij de nieuwe woningen. Koper kan zich hierdoor niet beroepen op het feit dat deze woning afwijkt van de huidige bouwvoorschriften.
– Meetinstructie NEN2580
Deze woning is opgemeten conform de Meetinstructie. De Meetinstructie is gebaseerd op de NEN2580. De Meetinstructie is bedoeld om een meer eenduidige manier van meten toe te passen voor het geven van een indicatie van de gebruiksoppervlakte en inhoud. De Meetinstructie sluit verschillen in meetuitkomsten niet volledig uit, door bijvoorbeeld interpretatieverschillen, afrondingen of beperkingen bij het uitvoeren van de meting. Uitgangspunt blijft altijd; “wat je ziet is wat je koopt” en de objectinformatie is van lagere prioriteit.
Kenmerken
We helpen je graag verder
Bezichtiging plannen?
Benieuwd geworden? Kom de sfeer van dit huis zelf proeven tijdens een bezichtiging. Wie weet is dit straks jouw nieuwe thuis.
Plan een bezichtiging
Gratis zoekopdracht
Op zoek naar jouw droomhuis? Ontvang ons nieuwste aanbod direct in je mailbox en laat ons je helpen bij het vinden van de woning die perfect bij je past.
Benieuwd wat jouw woning waard is?