€ 397.500 k.k.
Omschrijving
Welkom aan de Beekstraat 21 in Chaam. Deze woning biedt alles wat je zoekt in een fijn thuis. Op de begane grond vind je een lichte woonkamer met open keuken en een diepe, zonnige achtertuin met een overkapping voor heerlijke zomeravonden. Op de eerste verdieping bevinden zich 3 ruime slaapkamers, een praktische wasruimte en een moderne, compleet uitgeruste badkamer. Via een vlizotrap bereik je de tweede verdieping, waar een bergzolder extra opbergruimte biedt.
Benieuwd naar deze fijne gezinswoning in hartje Chaam? Neem dan contact met ons op voor een bezichtiging. Wij laten de woning graag aan je zien!
Indeling:
Begane grond
Via de ruime oprit, met plaats voor meerdere auto’s op eigen terrein, kom je binnen in de hal met een deels betegelde toiletruimte met wandcloset en fontein, een moderne meterkast, een trapkast en de trapopgang naar de 1e verdieping. Vanuit de hal kom je in de lichte woonkamer met open keuken. Grote raampartijen zorgen hier voor een prettige lichtinval en de openslaande deuren aan de achterzijde toegang geven tot de tuin.
De open keuken is in een praktische L-vorm opgesteld en voorzien van onder- en bovenkasten, lades, een 5-pits gasfornuis, afzuigkap en vaatwasser. Het kunststof werkblad is onderhoudsvriendelijk en via de loopdeur stap je zo de achtertuin in – ideaal tijdens het koken of op zomerse dagen.
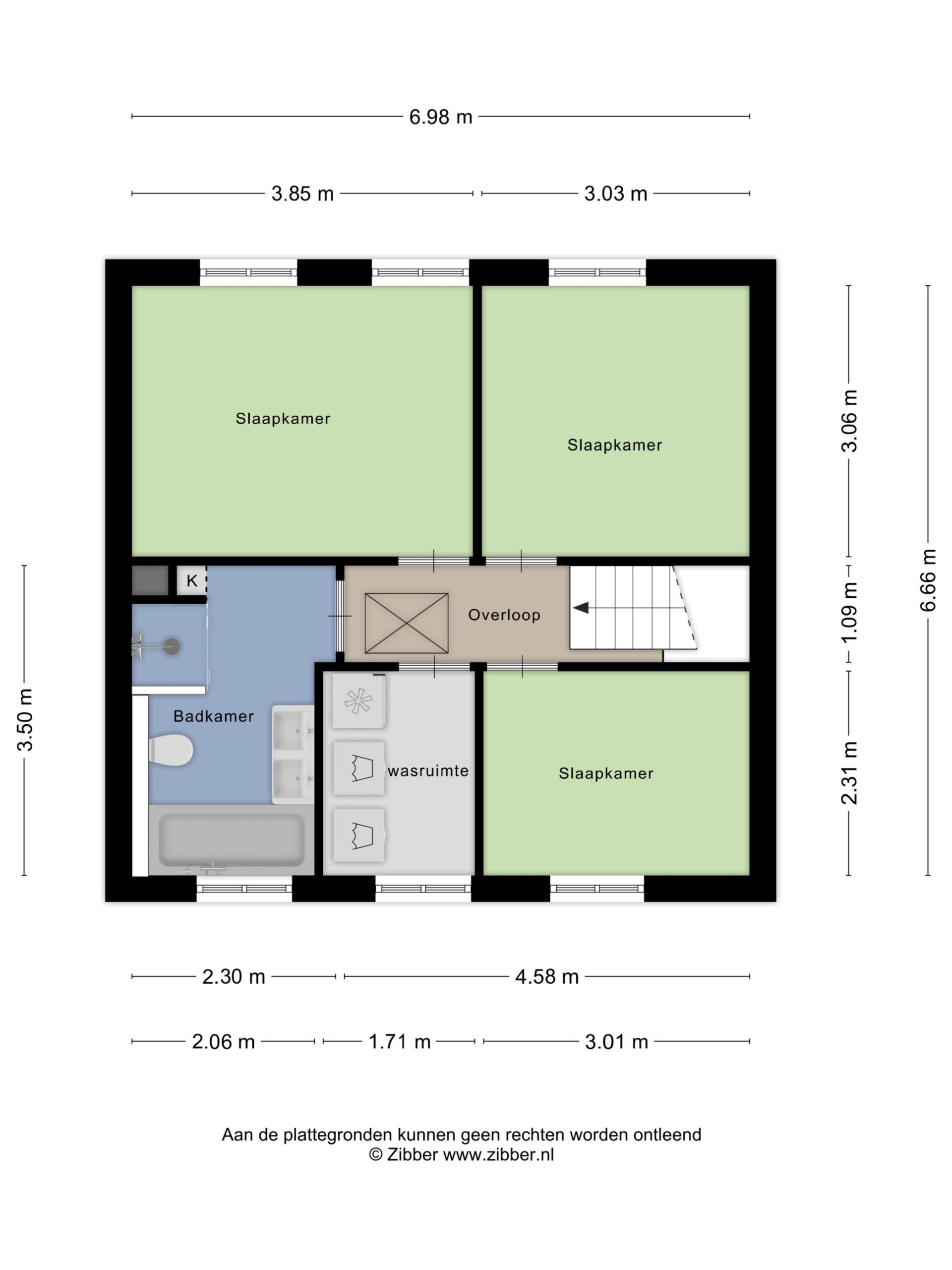
1e verdieping
Op de eerste verdieping bevinden zich drie, in grootte variërende, slaapkamers en een aparte wasruimte met de aansluitingen voor een wasmachine en droger. De moderne badkamer is volledig betegeld en beschikt over een ligbad, douche, dubbel wastafelmeubel en een wandcloset..
Vanaf de overloop kun je met een vlizotrap naar de 2e verdieping.
2e verdieping
Via een vlizotrap bereik je de bergzolder met dakraam en de opstelplaats van de Vaillant cv-ketel (bouwjaar 2019). Ideaal voor het opbergen van seizoensspullen. Als je een vaste trap plaatst en bijvoorbeeld een dakkapel/nokverhoging, dan kun je op deze verdieping een extra slaapkamer creëren.
Tuin, overkapping & garage
De achtertuin is een absolute troef van deze woning. Verrassend ruim en met volop privacy – zonder inkijk van achterburen. Er zijn twee terrassen, waarvan één onder een ruime overkapping voorzien van elektra en verlichting. Verder is er een gazon, diverse borders en een handmatig bedienbaar zonnescherm voor extra comfort op zonnige dagen.
De garage is ca. 7.03 m diep en ca. 2.92 m lang en beschikt over elektra.
Kenmerken
o Bouwjaar 1967.
o Houten kozijnen.
o Dubbel glas, m.u.v. de voordeur en het toiletraam. Deze zijn voorzien van enkel glas.
o De begane grond vloer is van beton.
o De 1e en 2e verdiepingsvloer zijn van hout.
o C.v.-combiketel (Vaillant, 2019).
o De woning is voorzien van 6 zonnepanelen.
o Zonnige en privacybiedende tuin op het noordwesten.
o Parkeren op eigen terrein voor meerdere auto’s.
o De woning ligt op loopafstand van alle dagelijkse voorzieningen en sportvelden.
o Aanvaarding in overleg.
Chaam
Chaam ligt in de grensstreek tussen Breda en Baarle-Nassau en heeft iets meer dan 4.000 inwoners. Het dorp heeft een ruim winkelaanbod, er zijn verschillende sportverenigingen, een bibliotheek, een Cultureel Centrum en twee basisscholen. Het voortgezet onderwijs vind je op fietsafstand in Baarle-Nassau of Breda. Er zijn ook goede busverbindingen naar Breda en Tilburg. De doorgaande weg van Breda naar Baarle-Nassau brengt je tot rust en biedt ontsluiting naar de A58 en de A16. Wil je even ontspannen? Dan ga je naar de Chaamse bossen, de Strijbeekse Heide of je wandelt over de landgoederen Hondsdonk of Valkenberg. Rust en ruimte om te wonen met goede voorzieningen en de steden dichtbij. Gemeente Alphen-Chaam is een Cittaslow* gemeente. Kortom, het is fijn wonen in Chaam!
* Cittaslow is het internationale keurmerk voor gemeenten die op het gebied van leefomgeving, landschap, streekproducten, gastvrijheid, milieu, infrastructuur, cultuurhistorie en behoud van identiteit tot de top behoren.
Verkoopvoorwaarden
– Asbestclausule
Bij woningen die voor 1 juli 1993 gebouwd zijn, bestaat het risico dat er asbesthoudende materialen verwerkt zijn in o.a. (rook)kanalen, dak(beschot), scheidingswanden, gevelpanelen, nabij verwarmings- en warmwatertoestellen en in de vloerbedekking. Het eventuele risico van aanwezigheid van asbesthoudende materialen gaat na een verkoop over op de kopende partij, hetgeen wordt vastgelegd in de koopakte.
– Ouderdomsclausule
De ouderdomsclausule zal voor deze woning in de koopakte worden opgenomen omdat de onroerende zaak meer dan 57 jaar oud is, wat betekent dat de eisen die aan de bouwkwaliteit gesteld mogen worden aanzienlijk lager liggen dan bij de nieuwe woningen. Koper kan zich hierdoor niet beroepen op het feit dat deze woning afwijkt van de huidige bouwvoorschriften.
– Meetinstructie NEN2580
Deze woning is opgemeten conform de Meetinstructie. De Meetinstructie is gebaseerd op de NEN2580. De Meetinstructie is bedoeld om een meer eenduidige manier van meten toe te passen voor het geven van een indicatie van de gebruiksoppervlakte en inhoud. De Meetinstructie sluit verschillen in meetuitkomsten niet volledig uit, door bijvoorbeeld interpretatieverschillen, afrondingen of beperkingen bij het uitvoeren van de meting. Uitgangspunt blijft altijd; “wat je ziet is wat je koopt” en de objectinformatie is van lagere prioriteit.
Kenmerken
We helpen je graag verder
Bezichtiging plannen?
Benieuwd geworden? Kom de sfeer van dit huis zelf proeven tijdens een bezichtiging. Wie weet is dit straks jouw nieuwe thuis.
Plan een bezichtiging
Gratis zoekopdracht
Op zoek naar jouw droomhuis? Ontvang ons nieuwste aanbod direct in je mailbox en laat ons je helpen bij het vinden van de woning die perfect bij je past.
Benieuwd wat jouw woning waard is?