€ 400.000 k.k.
Omschrijving
Aan de Frederikstraat 25 in Baarle-Nassau, gelegen in een rustige woonwijk met veel groen, staat deze nette hoekwoning. Beneden een hal, toilet, trapkast, woonkamer, openkeuken en bijkeuken. Op de 1e verdieping zijn drie slaapkamers als ook de badkamer. Via een vaste trap ga je naar de tweede verdieping. Hier bevindt zich de voorzolder met de was- en stookruimte.
Ben jij op zoek naar een leuke instapklare woning op een geliefde locatie? Dan is deze woning zeker iets voor jou!
Begane grond
Via de entree aan de voorzijde van de woning kom je in de hal die je toegang geeft tot de meterkast (2 aardlekschakelaars, 9 lichtgroepen, 1 krachtgroep), de toiletruimte met hangcloset en fontein en de ruime trapkast. Met de vaste trap ga je naar de 1e verdieping. Vanuit de hal ga je naar de keuken.
De woonkamer is uitgebouwd en is maar liefst ca. 35 m² groot en staat in open verbinding met de openkeuken, welke door de huidige bewoners in 2024 nieuw geplaatst is. De grote raampartijen aan de voor- en achterzijde maakt de woonkamer heerlijk licht. De wanden en het plafond zijn afgewerkt met glad stucwerk, de vloer is voorzien van PVC en er is vloerverwarming aanwezig.
De openkeuken staat direct in verbinding met de woonkamer, waardoor je tijdens het koken perfect betrokken blijft bij het gezelschap. De keuken is voorzien van boven en onderkasten en lades, hierdoor is er veel bergruimte aanwezig. De apparatuur is van de merken Siemens (vaatwasser, koelkast en vriezer), Bosch (combi-oven) en Bora (inductiekookplaat). Om het geheel af te werken is er ook een Quooker aanwezig.
De bijkeuken is achter de keuken gelegen. De vloer is gelijk aan de woonkamer en keuken. Hier is een spoelbak met koud- en warmwater als ook een ruime opbergkast. Vanuit de bijkeuken ga je naar de tuin.
1e verdieping
De overloop geeft je toegang tot 3 slaapkamers, de badkamer en de vaste trap naar de 2e verdieping.
De slaapkamers gelegen aan de achterzijde van de woning zijn ca. 3.50 x 3.57 m en ca. 3.50 x 2.59 m groot. De grootste slaapkamer beschikt tevens over een ruime “trapkast”. De slaapkamer gelegen aan de voorzijde van de woning is ca. 2.30 x 3.84 m groot. Deze heeft aan de voorzijde een groot balkon met balkondeur. De vloeren zijn voorzien van laminaat en de wanden zijn voorzien van glad stucwerk.
De badkamer is ca. 2.20/2.79 x 2.25 m groot. Deze is voorzien van een ligbad met hierin een douche, een wandcloset, een wastafel met spiegel, een kast en een designradiator.
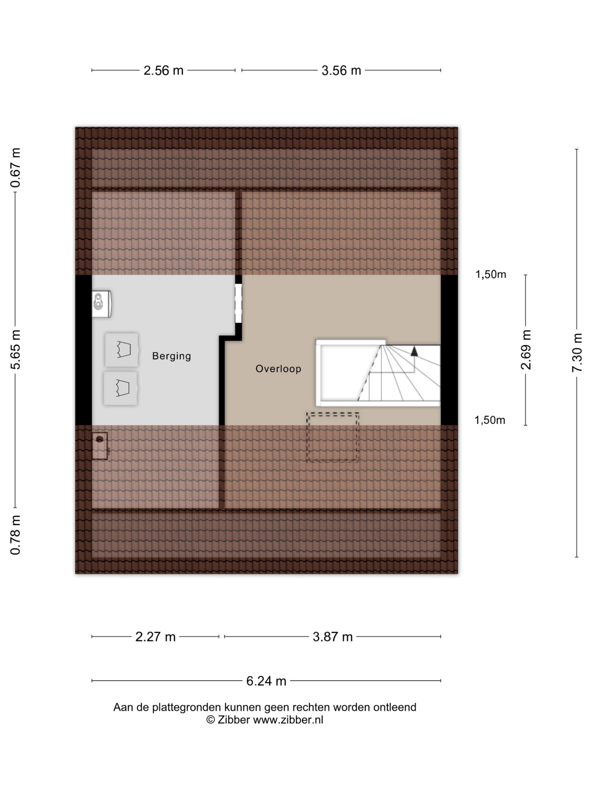
2e verdieping
Met een vaste trap kom je op de 2e verdieping. Deze bestaat uit twee delen. De voorzijde biedt veel opslagruimte en er bestaat de mogelijkheid om hier een groter veluxraam of dakkapel te plaatsen. In het tweede deel is de CV-ketel (Vaillant 2023) en de ventilatie box opgesteld. Hier zijn ook de aansluitingen voor de wasmachine en droger.
Tuin & berging
De zonnige achtertuin is gelegen op het westen en voorzien van sierbestrating en kunstgras. In de tuin staat een berging van ca. 2.98 x 2.98 m en is voorzien van elektra. In de achtertuin is een buitenkraan aanwezig. Via de poort is de brandgang bereikbaar welke naar de voorzijde van de woning leidt. Er is voldoende parkeergelegenheid in de directe openbare ruimte. De woning is gelegen in een rustige straat, dicht bij een groen plantsoen. De scholen, sportaccommodatie en het centrum zijn allemaal dichtbij.
Kenmerken
o Bouwjaar 1973.
o De kozijnen zijn van kunststof met dubbelglas.
o Het dak is geïsoleerd.
o De begane grondvloer en de 1e verdiepingsvloer zijn van beton.
o De 2e verdiepingsvloer is van hout.
o De woning is voorzien van elektrische rolluiken, m.u.v. badkamer en een slaapkamer, deze zijn handbediend.
o C.v.-combiketel Vaillant, bouwjaar: 2023.
o Energielabel C.
o Aansluiting glasvezelnet.
o Zonnige tuin op het westen.
o Er is parkeergelegenheid in de directe omgeving van de woning.
o Gelegen dicht bij een groen plantsoen met onder andere speeltoestellen.
o De woning ligt op loopafstand van het centrum van Baarle-Nassau met al haar voorzieningen.
o Uitvalswegen en het openbaar vervoer zijn dichtbij.
o Aanvaarding in overleg.
Baarle-Nassau
Baarle is een enclavedorp dat bestaat uit België en Nederland. Deze twee landen liggen kris kras door elkaar. Er zijn zelfs huizen die deels in België en deels in Nederland staan. Het Belgische Baarle-Hertog en het Nederlandse Baarle-Nassau heeft een hoog voorzieningenniveau met diverse supermarkten, bakkers, kledingwinkels, cafés en restaurants. Ook vind je er diverse sportverenigingen, twee basisscholen en een middelbare school. Brabantse steden zoals Breda, Tilburg en ‘s-Hertogenbosch zijn vlot bereikbaar, maar ook de Belgische steden Turnhout en Antwerpen. Naar de steden Tilburg, Breda en Turnhout zijn goede busverbindingen. Wil je even ontspannen? Dan wandel je naar visvijver ’t Goordonk. Rust en ruimte om te wonen met goede voorzieningen en de steden dichtbij. Kortom, het is fijn wonen in Baarle-Nassau!
Verkoopvoorwaarden
– Asbestclausule
Bij woningen die voor 1 juli 1993 gebouwd zijn, bestaat het risico dat er asbesthoudende materialen verwerkt zijn in o.a. (rook)kanalen, dak(beschot), scheidingswanden, gevelpanelen, nabij verwarmings- en warmwatertoestellen en in de vloerbedekking. Het eventuele risico van aanwezigheid van asbesthoudende materialen gaat na een verkoop over op de kopende partij, hetgeen wordt vastgelegd in de koopakte.
– Ouderdomsclausule
De ouderdomsclausule zal voor deze woning in de koopakte worden opgenomen omdat de onroerende zaak meer dan 53 jaar oud is, wat betekent dat de eisen die aan de bouwkwaliteit gesteld mogen worden aanzienlijk lager liggen dan bij de nieuwe woningen. Koper kan zich hierdoor niet beroepen op het feit dat deze woning afwijkt van de huidige bouwvoorschriften.
– Meetinstructie NEN2580
Deze woning is opgemeten conform de Meetinstructie. De Meetinstructie is gebaseerd op de NEN2580. De Meetinstructie is bedoeld om een meer eenduidige manier van meten toe te passen voor het geven van een indicatie van de gebruiksoppervlakte en inhoud. De Meetinstructie sluit verschillen in meetuitkomsten niet volledig uit, door bijvoorbeeld interpretatieverschillen, afrondingen of beperkingen bij het uitvoeren van de meting. Uitgangspunt blijft altijd; “wat je ziet is wat je koopt” en de objectinformatie is van lagere prioriteit.
Kenmerken
We helpen je graag verder
Bezichtiging plannen?
Benieuwd geworden? Kom de sfeer van dit huis zelf proeven tijdens een bezichtiging. Wie weet is dit straks jouw nieuwe thuis.
Plan een bezichtiging
Gratis zoekopdracht
Op zoek naar jouw droomhuis? Ontvang ons nieuwste aanbod direct in je mailbox en laat ons je helpen bij het vinden van de woning die perfect bij je past.
Benieuwd wat jouw woning waard is?