€ 525.000 k.k.
Omschrijving
Deze fijne gezinswoning in het centrum van Riel is ideaal voor gezinnen met (grotere) kinderen of voor mensen die van lekker veel ruimte houden. De woning kent heerlijke ruimtes om samen te zijn, maar biedt ook zeker de mogelijkheid om je even terug te trekken. Deze woning telt 3 slaapkamers en een ruime badkamer, verdeeld over de 1e en 2e verdieping.
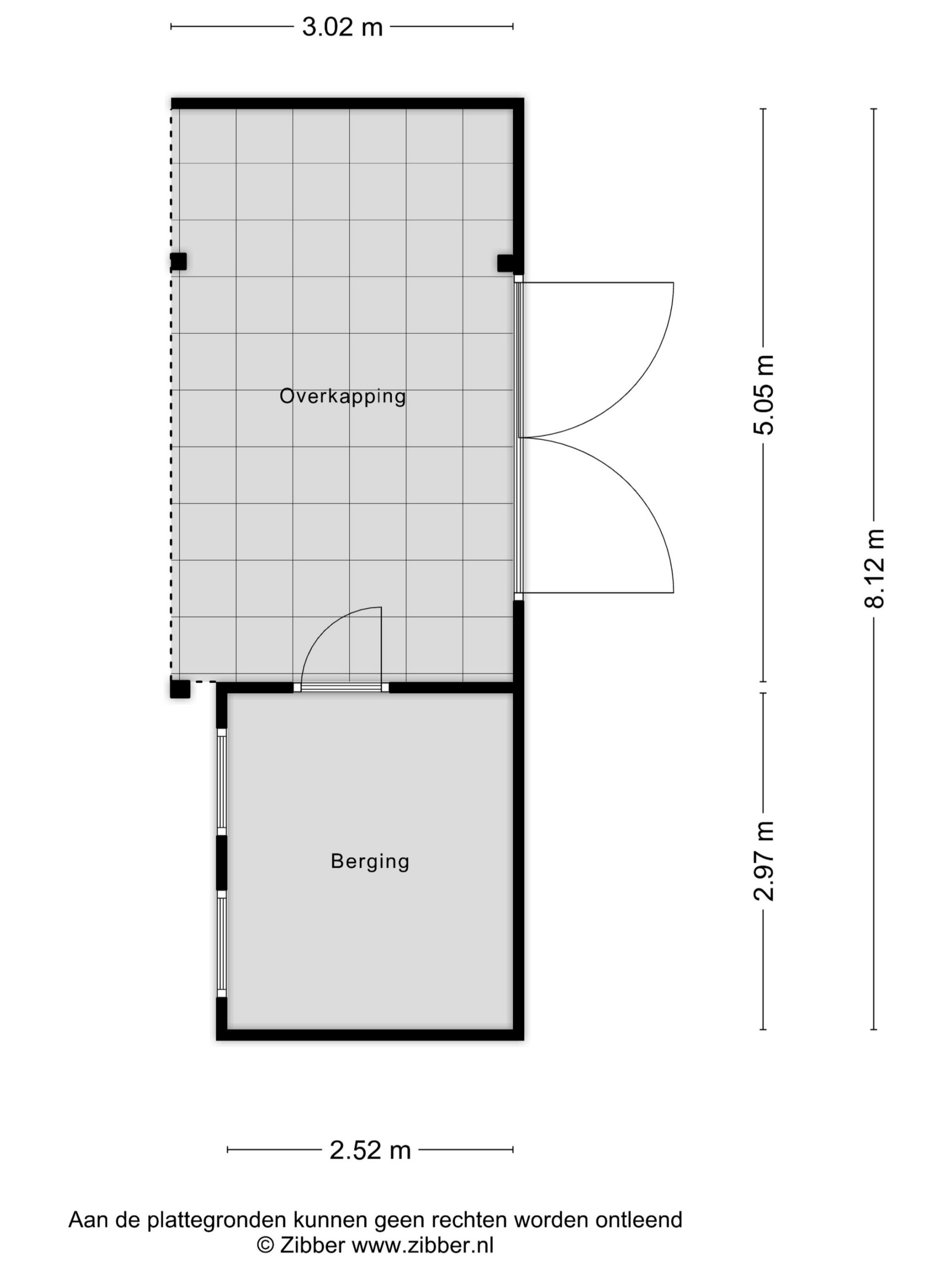
De tuin is op het zuiden gericht en is zo ingedeeld dat je hier de gehele dag kunt genieten van mooie dagen. Overdag onder de plantanen en later op de dag onder de ruime overkapping. Tevens biedt de tuin extra bergruimte en heeft het middels een dubbele deur ontsluiting op de achtergelegen brandgang.
Op zoek naar een ruime woning en benieuwd naar wat deze woning jou allemaal te bieden heeft? Neem dan snel contact op voor het inplannen van een bezichtiging.
Bouwjaar : 2002
Perceeloppervlakte : 216 m²
Inhoud woning : Ca. 528 m³
Woonoppervlak : Ca. 140 m²
Gebouw gebonden buitenruimte : Ca. 11 m²
Externe bergruimte : Ca. 11 m²
Overige inpandige ruimte : Ca. 9 m²
Aanvaarding : In onderling overleg
Indeling:
Begane grond
Via de voordeur kom je in de hal waar de meterkast is (4 groepen, 2 aardlekschakelaars, 2 hoofdschakelaars, 2x glasvezelkabel en 1 groep voor de zonnepanelen). Vanuit hier kom je in de eetkamer, welke gelegen is tussen de woonkamer en de open keuken.
De keuken aan de voorzijde van de woning is heerlijk licht door het grote raam. Deze is voorzien van diverse kasten en lades, een ruime koelkast, 6-pits gasfornuis met ingebouwde oven, een vaatwasser en een rvs spoelbak. Tevens is er een Quooker kraan aanwezig.
De ruime woonkamer aan de achterzijde van de woning staat in directe verbinding met de tuin en biedt plaats voor een groot gezin. Mocht je toch liever even apart willen zitten, dan is de naastgelegen kamer ideaal om jezelf even terug te trekken. Deze ruimte kan multifunctioneel worden ingezet en zou perfect een kantoor aan huis kunnen zijn of worden ingezet als slaapkamer. Achter deze ruimte is nu een inpandige berging aanwezig.
Centraal in de woonkamer is de afgesloten hal met hierin een vaste trapopgang richting de 1e verdieping. In de hal is tevens een los toilet met fonteintje.
1e verdieping
Via de vaste trap kom je op de overloop. Hier heb je toegang tot twee slaapkamers en de badkamer. Tevens is hier ook de trapopgang naar de 2e verdieping.
Slaapkamer 1 (ca. 4.53 x 2.92 m groot) met “walk-in-closet” (ca. 3.19 x 2.04 m groot) is aan de achterzijde van de woning gelegen.
Slaapkamer 2 (ca. 2.92 x 3.76 m groot) is aan de voorzijde van de woning gelegen. De vloer van beide slaapkamers is voorzien van laminaat.
De geheel betegelde badkamer is voorzien van een douche, toilet, ligbad en een wastafel met wastafelmeubel.
2e verdieping
Met een vaste trap kom je op de 2e verdieping. Je hebt hier een voorzolder met extra bergruimte onder de schuine kant. Tevens bevindt zich hier de opstelplaats van de c.v.-combiketel ( Vaillant, 2017) en hangt hier de omvormer van de 15 zonnepanelen.
Vanuit de voorzolder is de 3e slaapkamer bereikbaar (ca. 5.25 x 2.55 m groot). De vloer is hier tevens voorzien van een laminaat. Boven deze slaapkamer is nog een extra vliering te bereiken.
Tuin & berging
De woning heeft een achtertuin die gelegen is op het zuiden en heeft verschillende zitjes. Direct achter de woning is een heerlijk zitje onder de plantanen en tevens kun je heerlijk vertoeven onder de overkapping. Vanuit deze overkapping is een achterom richting de brandgang. Over de volledige breedte van de woonkamer is een zonnescherm aanwezig.
Kenmerken
o Bouwjaar 2002.
o Houten kozijnen, voorzien van HR++ glas.
o Wanden en plafond op begane grond strak gestuct.
o Begane grond en verdiepingsvloeren zijn van beton.
o Begane grond is volledig betegeld.
o 1e en 2e verdieping voorzien van laminaat.
o 15 zonnepanelen.
o Energielabel A.
o C.v.-combiketel (Vaillant 2017).
o Zonnige tuin op het zuiden met ruime overkapping.
o De woning is gunstig gelegen ten opzichte van voorzieningen in het dorp.
o Aanvaarding in overleg.
Riel
Riel is een dorp in de gemeente Goirle, ten zuiden van Tilburg en ten zuiden van de Rijksweg A58. De natuurgebieden Regte Heide en de Rielse Laag liggen om de hoek. Een uniek gebied waar je prachtige wandelingen kunt maken. Het dorp heeft een ruim winkelaanbod, er zijn verschillende sportverenigingen, een Cultureel Centrum, een basisschool en kinderopvang. Het voortgezet onderwijs vind je op fietsafstand in Tilburg of Goirle. Er is een ook goede busverbinding naar o.a. Baarle-Nassau en Tilburg. Rust en ruimte om te wonen met goede voorzieningen en de steden dichtbij.
Verkoopvoorwaarden
– Meetinstructie NEN2580
Deze woning is opgemeten conform de Meetinstructie. De Meetinstructie is gebaseerd op de NEN2580. De Meetinstructie is bedoeld om een meer eenduidige manier van meten toe te passen voor het geven van een indicatie van de gebruiksoppervlakte en inhoud. De Meetinstructie sluit verschillen in meetuitkomsten niet volledig uit, door bijvoorbeeld interpretatieverschillen, afrondingen of beperkingen bij het uitvoeren van de meting. Uitgangspunt blijft altijd; “wat je ziet is wat je koopt” en de objectinformatie is van lagere prioriteit.
Kenmerken
We helpen je graag verder
Bezichtiging plannen?
Benieuwd geworden? Kom de sfeer van dit huis zelf proeven tijdens een bezichtiging. Wie weet is dit straks jouw nieuwe thuis.
Plan een bezichtiging
Gratis zoekopdracht
Op zoek naar jouw droomhuis? Ontvang ons nieuwste aanbod direct in je mailbox en laat ons je helpen bij het vinden van de woning die perfect bij je past.
Benieuwd wat jouw woning waard is?